Ecofluent Homes LLC
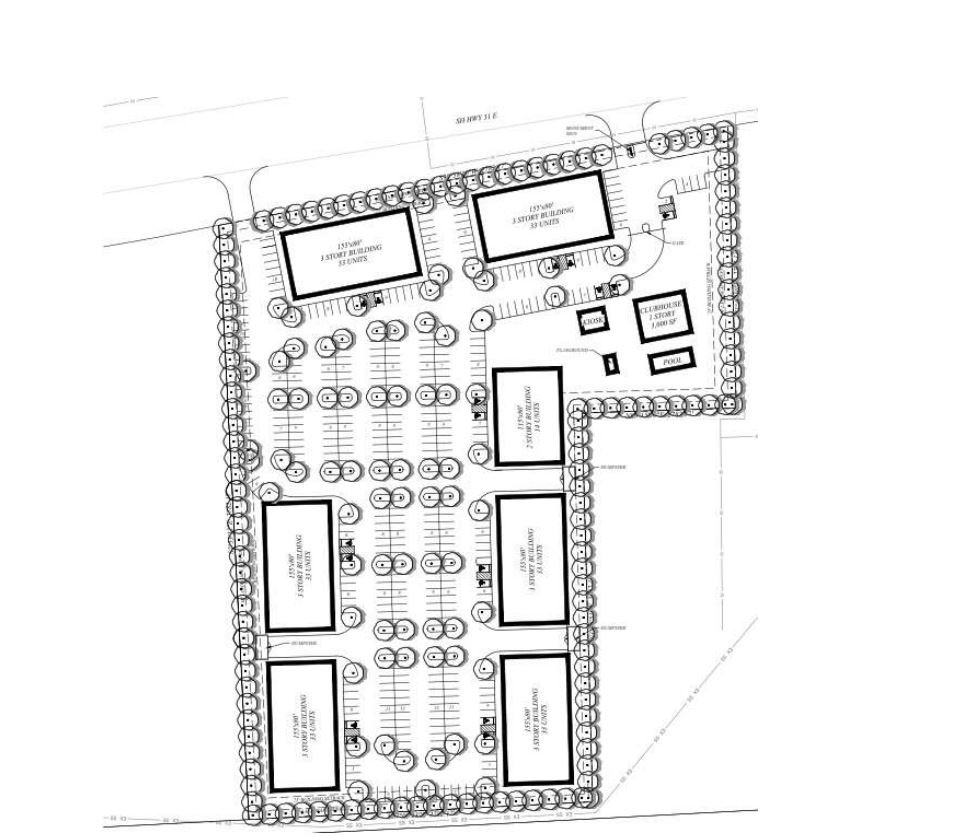
Ground Up construction Apartments – 212 Units
oone and Boone Construction
Rezoning Approved / Site Plan in Progress
Hwy 31 East, Tyler TX